+375 (17) 251-87-12
+375 (29) 103-07-40
+375 (17) 251-87-13
+375 (29) 130-18-24
+375 (17) 251-87-14
+375 (29) 130-19-24
info@belseven.by Как к нам проехать?
Омичные сигнализаторы уровня LSP-1 и 2
Главные вкладки
Назначение
Омичный сигнализатор уровня LSP-1 и 2 предназначен для сигнализации уровня токопроводящих сыпучих материалов.
Устройство
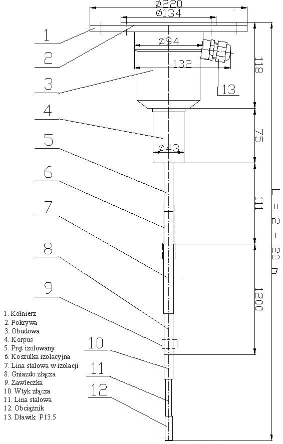
Омичные сигнализаторы уровня LSP-1 и 2 состоят из двух электродов и электронной схемы. Один электрод, соединённый с землёй, образует крепёжный воротник 1, корпус электронной схемы 3 и корпус 4 в сигнализаторе LSP-1, или корпус электроники 3 и корпус 4 в сигнализаторе LSP-2. Второй электрод состоит из несменяемой и сменной части. Несменяемая часть состоит из изолированного прута 5, соединённого постоянно со стальной лентой в изоляции 7, изоляционной рубашки 6, и гнезда 10, не изолированной стальной проволоки 11 и натяжителя 12. Электронная схема закреплена на вертикальной плите. На вертикальной плите находится щит с выключателями, включатель «тест», зелёный и красный диоды. Крышка снабжена смотровым окном, через которое можно наблюдать за работой сигнализатора.

Омичный сигнализатор уровня LSP-1
Принцип действия
В сигнализаторах LSP-1 и 2 используется явление электропроводимости твёрдого тела: каменный и бурый уголь, графит, кокс, мел и т. п., помещённого между электродами. Один электрод служит заземлением и подключён к зажиму заземления на щитке, закреплённом на вертикальной плите. Заземление соединено с сырьём через стальную конструкцию и подающие устройства. Второй электрод изолирован от заземления. Если сырьё достигает уровня заизолированного электрода, цепь замыкается, зажигается красный диод и происходит переключение контактов переключателя. Если уровень сырья опустится ниже электрода, то контакты переключателя возвратятся в прежнее положение и красный диод погаснет. Время гистерезиса сигнализатора при переключении контактов переключателя составляет 7 секунд. На вертикальном плите находится зелёный диод, который сигнализирует питание сигнализатора. Сигнализатор оборудован нестабильным включателем «тест», с помощью которого можно контролировать работу сигнализатора без замыкания электрической цепи с помощью сырья. При нажатии кнопки «тест» зажигается красный диод и наступает переключение контактов переключателя.
Технические данные
- напряжение: 230 VAC или 24 VDC
- нагрузка контактов реле: 250 V / 1A
- потребляемая мощность: 1,5 VA
- степень защиты корпуса IP 66
- длина электроды: 2 - 20 м
- диаметр проволоки: 8 мм
- масса: 5 кг
Монтаж
Сигнализатор LSP -1 может крепиться при помощи круглого или квадратного воротника, а LSP -2 – к штуцеру G 11''. При воротниковом монтаже сигнализатор может быть расположен вровень с полом. Воротники имеют отверстия и желоба для отвода воды.

